Rif: L25591
MILANO
MILANO - zona Bande Nere
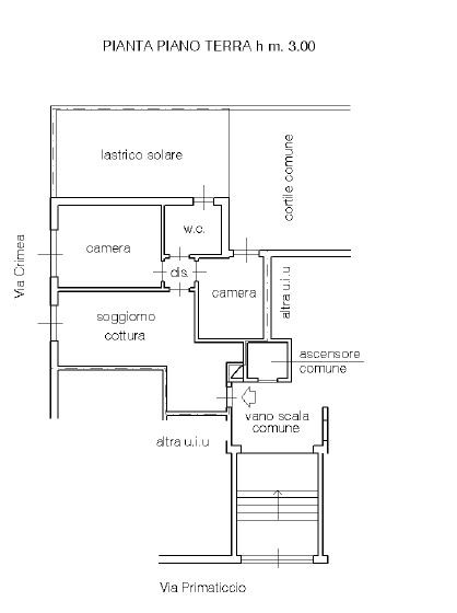
Primaticcio a 100 metri dalla fermata della metropolitana in posizione tranquilla proponiamo in stabile signorile ottimo trilocale ristrutturato e completamente arredato. L'appartamento è composto da soggiorno con angolo cottura, camera matrimoniale, camera singola, bagno finestrato e solaio. L'immobile è dotato di impianto di climatizzazione caldo-freddo e tapparelle elettriche. Contratto di 18 mesi con cedolare secca. Canone mensile Eu. 1.380,00 più spese. Disponibile da febbraio 2026
Consistenze
| Descrizione | Superficie | Sup. comm. |
|---|---|---|
| Principali | ||
| Immobile - piano rialzato | 70 Mq | 70 Mqc |
| Totale | 70 Mqc | |







